U gebruikt een verouderde internetbrowser.
We raden u aan om de meest recente internetbrowser te installeren voor de beste weergave van deze website.
Een internetbrowser die up to date is, staat ook garant voor veilig surfen.

Hundelgemsesteenweg 316 / B, 9820 Merelbeke-Melle
Vraagprijs: € 499.000

Omschrijving

Ingerichte kantoorruimte nabij Gent met parkeerplaatsen

Merelbeke- Deze handels-,praktijk-, of kantoorruimte in Merelbeke-Melle is een unieke locatie voor bedrijven die op zoek zijn naar een moderne en duurzame werkplek rond Gent.
Het gebouw is gelegen in een stedelijke omgeving van Merelbeke (Flora), net voor de brug van Gent komende, direct aan de opritten en afritten van de R4 en E40/E17. En ligt op fietsafstand van Gent centrum en wandelafstand van het centrum van Merelbeke waar men over heel wat winkels/supermarkten/restaurants enz. beschikt. Daarnaast is het kantoor goed bereikbaar met het openbaar vervoer en beschikt het over een 5tal parkeerplaatsen achteraan het gebouw voor medewerkers en bezoekers. En 1 parkeerplaats vooraan. In die zone zit heel wat bedrijvigheid en heeft heel veel passage. Het is de ideale plek om een flexibel kantoor of (medische ) praktijkruimte uit te bouwen.
De lichtrijke ruimte is om en bij de 172 m2 bruikbare vloeroppervlakte en is perfect instapklaar, met op maat gemaakte meubels (op maat gemaakte kasten van vloer tot plafond met ingewerkte deuren naar de sanitaire ruimte , keuken en bergingen waardoor het geheel heel strak, modern en professioneel oogt). Achteraan is een groot ruimte (op heden bureel) maar kan dienen als showroom, praktijkruimte enz. Aansluitend komt u op een mooie zonnig terras.
Mail info@evelinehostevastgoed.be voor meer info of een bezoekmoment of stuur een whatsapp op 0497430728.

De gehele ruimte straalt professionalisme en klasse uit mede dankzij de hand van Architect Patrick Persoons.
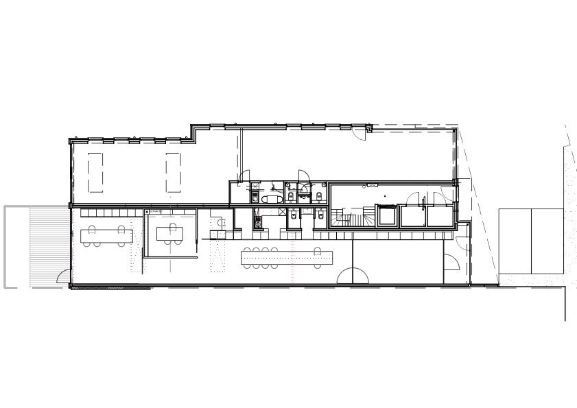
Gelegen op de gelijkvloerse verdieping is het als volgt ingedeeld op heden:
afgesloten inkomhal, eerste kantoorgedeelte dat afgesloten kan worden van het volgende gedeelte met de glazen wand. Die kan zowel doorzichtig als ondoorzichtig gemaakt worden zodat privacy waar nodig kan gegarandeerd worden. Verder komt u in een mooie open lange ruimte waar een heel lange bureautafel/werkplek/vergaderplek is gecreëerd. Ideaal voor flexibel werken. Rechts achter de de wandkasten die op maat gemaakt zijn en die zich over de hele ruimte uitstrekken, bevinden zich de keuken, de 2 toiletten en een bergingsruimte en een kleinere aparte werkplek. Daarnaast is ook nog een private kantoorruimte gecreëerd achter de oranje-rode wand/deur.
Achteraan bevindt zich nog een zeer ruime bureelruimte die kan afgesloten worden met toegang naar het zonnige terras achteraan. Zie 3D- plan bij de foto's. De grote op maat gemaakte kantoormeubels kunnen blijven staan.

De handelszaak heeft een energielabel B, wat betekent dat het gebouw energiezuinig is en voldoet aan de huidige normen op het gebied van duurzaamheid. Dit zorgt niet alleen voor lagere energiekosten, maar draagt ook bij aan een positief imago van het bedrijf. Er zijn veiligheidscamera's voorzien.

Naast de duurzame aspecten van het kantoor, biedt het ook een inspirerende werkomgeving. De open ruimtes en moderne inrichting zorgen voor een prettige werksfeer en stimuleren samenwerking en creativiteit.

Deze commerciële ruimte in Merelbeke-Melle is dan ook de ideale locatie voor bedrijven die op zoek zijn naar een modern en duurzaam gebouw om hun praktijk of winkel in uit te bouwen.. Met de goede bereikbaarheid en parkeermogelijkheden is het een aantrekkelijke plek voor zowel medewerkers als klanten.
EPC label B


Kenmerken

Algemeen

Adres:Hundelgemsesteenweg 316-B
Merelbeke-Melle
Residentie:Baros
Referentie:20251148
Vraagprijs:€ 499.000
Type:Winkelruimte
Beschikbaar vanaf:Onmiddellijk
Perceeloppervlakte:1.567 m²
Perceelbreedte:17 m
Perceeldiepte:93 m
Bebouwde opp.:457 m²
Bouwjaar:2014
Bouwlagen:4
Op verdieping:0
Verhuurbare vloeroppervlakte:172 m²

Indeling

WC:2
Bureau:4
Keuken:Ja
Opslagruimte:Ja

Comfort

Snelweg:Ja - op minder dan 500 m
Treinstation:Ja - op 1000 m tot 1500 m
Treinhalte:Ja - op 1000 m tot 1500 m
Bushalte:Ja - op minder dan 500 m
Winkel:Ja - op minder dan 500 m
School:Ja - op 500 m tot 1000 m
Kinderopvang:Ja - op minder dan 500 m
Bank:Ja - op 500 m tot 1000 m
(Stads)centrum:Ja - op 1500 m tot 2000 m
Ontspanning:Ja - op minder dan 500 m
Restaurant:Ja - op 500 m tot 1000 m
Raamwerk:Aluminium
Dak:Plat dak
Beglazing:Hoogrendementsglas
Verwarming:Airconditioning, Vloerverw. geheel, Zonnecollectoren, Individueel, Warmtepomp
Verwarmd water:Zonne energie, Zonneboiler
Isolatie:Volledig geïsoleerd

Kadastrale gegevens

Niet geïndexeerd K.I.:€ 1.709
Kadastrale benaming:44088 - MERELBEKE-MELLE 1 AFD/MERELBEKE 1 AFD/
Kadastrale Nummers:0144W12P0032 HAGV

Informatieplicht

Energielabel:B
Stedenbouwkundige vergunning:Ja
Voorkooprecht:Neen
Verkavelingsvergunning van toepassing:Neen
Stedenbouwkundige bestemming:Woongebied
Dagvaarding en herstelvordering:Geen rechterlijke herstelmaatregel of bestuurlijke maatregel opgelegd
Overstromingsgevoelig:Geen overstromingsgevoelig gebied
Overstromingsgebied:Geen afgebakende zones
Overstromingskans perceel (P-score):  D
Overstromingskans gebouw (G-score):  D
Erfgoed:Geen beschermd erfgoed

Ligging

Neem vrijblijvend contact op

Wenst u meer informatie? Contacteer ons vrijblijvend voor meer informatie. 
Wanneer wij uw aanvraag hebben ontvangen zullen wij verder contact met u opnemen. 


U moet akkoord gaan met het privacybeleid van deze website
* Verplicht in te vullen
Niet gevonden wat u zocht? Maak hier uw gratis woonprofiel aan en blijf op de hoogte van ons recentste aanbod.
Schrijf u in
Terug naar boven
Sluit menu Eveline Hoste Vastgoed