U gebruikt een verouderde internetbrowser.
We raden u aan om de meest recente internetbrowser te installeren voor de beste weergave van deze website.
Een internetbrowser die up to date is, staat ook garant voor veilig surfen.

Helaas, dit pand is verkocht

9820 Merelbeke

Omschrijving

Open bebouwing met 4 slkp / bezoekdag 6/07 & 9/07

Ideaal gelegen open bebouwing aan het Liedemeerspark in een rustige woonwijk.
Zeer vlot bereikbaar via de R4, E17 en E40. Bus en treinstation op fiets/wandelafstand alsook op fietsafstand van centrum Gent/Merelbeke Winkels en alle ontspanning in de buurt.
Deze woning (bouwjaar 1999) is de perfecte woning voor een gezin en kan tevens dienen als kangoeroewoonst of als praktijkruimte daar er 2 leefruimtes (met aparte ingang) en slaapkamer(s) zowel boven als beneden aanwezig zijn.
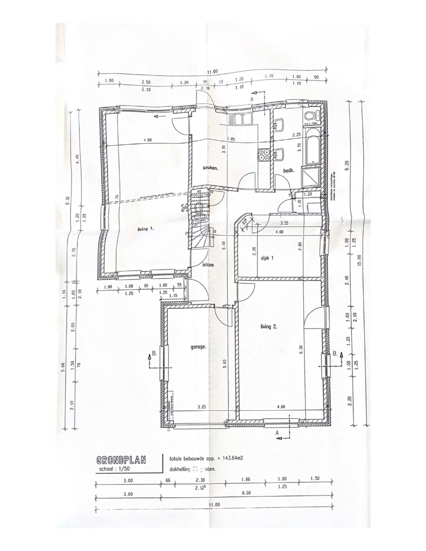
De woning omvat een hal die toegang geeft tot de eerste leefruimte met aanpalende keuken. Ernaast bevindt zich de badkamer, berging voor wasmachine en droger en een eerste slaapkamer. De extra leefruimte en de garage op het gelijkvloers bevinden zich aan de andere kant van de hal.
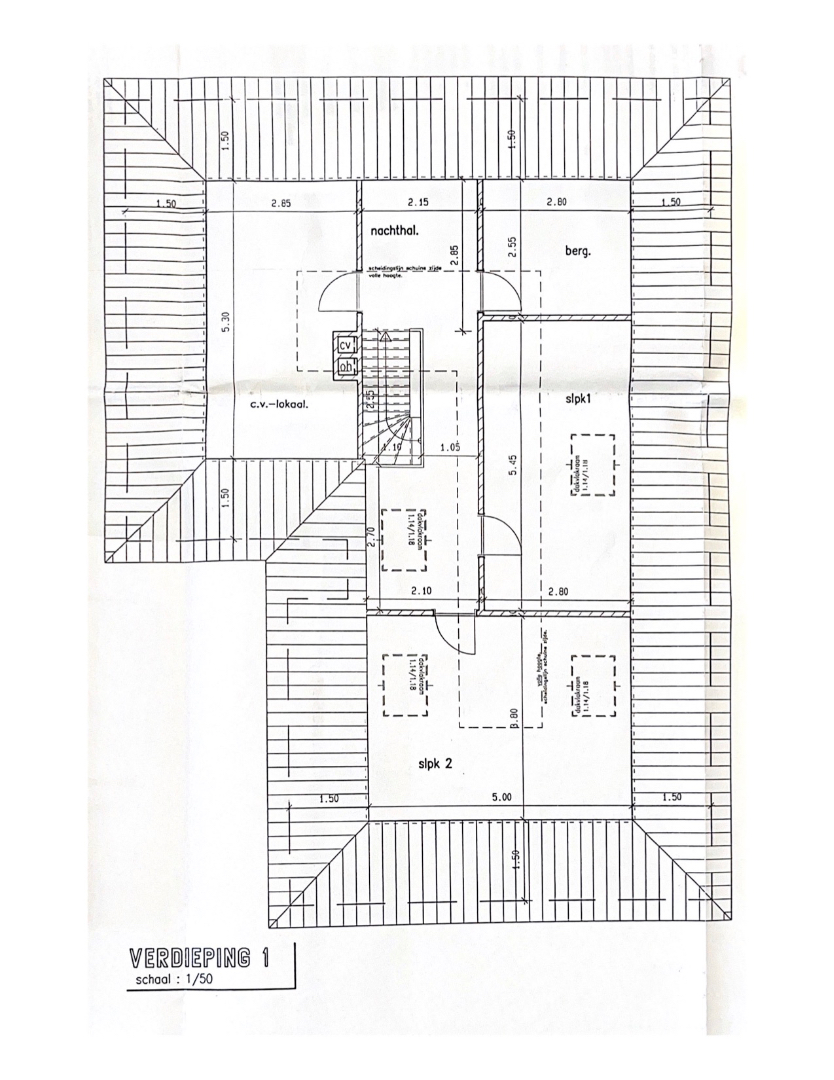
Op de eerste verdieping zijn er 3 slaapkamers en 1 bergruimte/zolder terug te vinden.
Er is een mooie tuin rondom de woning die U de nodige rust en privacy biedt.
Deze woning is op heden klassiek en gezellig ingericht. Mits de nodige aanpassingen kan hier tevens een moderne look worden gecreëerd.

De eerste bezoekdag zal plaatsvinden op woensdag 6/07 13-15u en tweede bezoekdag op zaterdag 9/07 14-17u.
U kan online Uw bezoek inplannen. Let op, volzet is volzet.

De eigenaar behoudt zich het recht om te laten boven bieden onder gesloten omslag bij meerdere biedingen aan vraagprijs.

Woongebied, vergunning; verkavelingsvergunning, geen voorkooprecht, geen dagvaarding; mogelijks overstromingsgevoelig gebied




Niet gevonden wat u zocht? Maak hier uw gratis woonprofiel aan en blijf op de hoogte van ons recentste aanbod.
Schrijf u in
Terug naar boven
Sluit menu Eveline Hoste Vastgoed